Informations produits
-
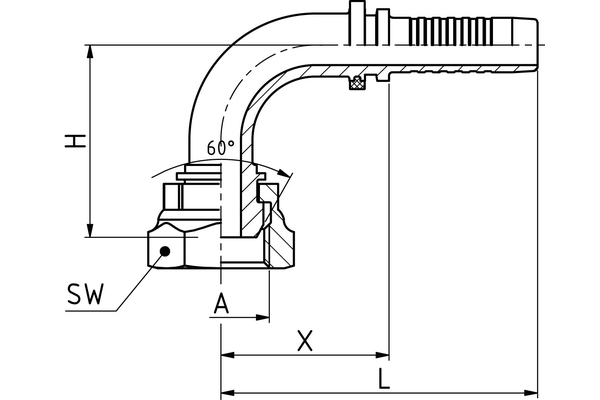
Données techniques
DN: 12 Size: 08 Pouce: 1/2 Filetage + norme: Tête d'étanchéité BSP, cône 60° avec écrou-raccord, filetage BSP Filetage de raccord A: G 1/2" X [mm]: 39,0 L1 [mm]: 71,5 H [mm]: 44,0 SW1 [mm]: 27 Type d’écrou: serti Désignation de raccord Indunorm: BF 90° Forme: 90° Gamme d'embout à sertir: Programme universel XV Matériau: Acier de décolletage Résistance à la rouille blanche [h]: 72 Résistance à la rouille rouge [h]: 144 Surface: Chrome III Type de raccord: DKR 90°

